摘要:針對發熱元件的熱流密度越來越高所導致的散熱問題成為制約微小型電子器件發展的瓶頸,將輕型零質量合成雙射流技術應用于空調外機控制器以探索其熱管理能力,通過數值模擬對翅片結構進行了改進,比較了原始翅片、改進翅片、合成雙射流與原始翅片組合散熱的散熱效果,結果表明:翅片高度和厚度的增加均能強化換熱;與原始翅片相比,改進翅片、實例1(加合成雙射流)、實例4(加合成雙射流)散熱效率分別提高10.88%,20.70%和26.58%,說明組合散熱效果更好;在組合散熱及合成雙射流作用下翅片間出現渦對,增強了空氣摻混,對流換熱增強,且射流湍流度越高,散熱性能越強.最后對原始翅片和組合散熱開展了紅外實驗,驗證了合成雙射流散熱的高效性和可行性.
關鍵詞:合成雙射流;組合散熱;翅片;強化換熱;電子元器件
在全球氣候變暖的大背景下,人們工作生活對空調的依賴性越來越高,尤其是高性能計算中心等發熱量高的場所,須要空調全年制冷運行以保證服務器高性能運行所需的溫度環境.對于某家用空調外機控制器,當持續高溫運行時,它的主要發熱元件會產生較多熱量導致熱失效,因此須要尋求一種高效的散熱技術對其進行散熱.散熱技術根據帶走熱量的方式,可分為被動散熱和主動散熱,被動散熱中翅片散熱應用最多.目前關于翅片散熱的研究主要是翅片結構和形狀,結構參數中翅片高度影響最大,翅片厚度最小,不同翅片形狀散熱效果不同.主動散熱包括強制風冷、水冷、合成射流(synthetic jet,SJ)等多種方式,散熱性能優于被動散熱.合成射流是非定常湍流,不少研究者對合成射流的強化換熱性能進行了研究,發現沖擊合成射流最大冷卻效果可達理論值的64%;當雷諾數相同時,其傳熱效率是連續定常射流的3倍.與合成射流相比,文獻18提出的合成雙射流(dual synthetic jet,DSJ)技術散熱能力更強,由兩個出口、一個調流滑塊、兩個腔體共用一個振動膜組成,該技術射流能力強,速度大,具有矢量功能,有利于發光二極管(LED)燈等有限空間內的電子元件冷卻.將合成射流與散熱器組合進行散熱,芯片溫度可下降15℃,散熱效果強于二者單獨散熱時的情況,且射流吹在翅片上的散熱效果更好.本研究以空調外機控制器為模型,通過數值模擬分析了翅片結構參數改變對翅片散熱器的影響,重點研究了合成雙射流與翅片組合散熱時的散熱性能,并開展了紅外實驗,充分證明了合成雙射流散熱的高效性和可行性,有利于實現日益增加的電子元器件散熱需求,符合其微型化發展的趨勢.
01 數值方法
1.1 計算模型與求解設置
如圖1所示,本研究的物理模型包括電路板、四個發熱元件(整流橋、快恢復二極整流管、智能功率模塊、超快二極管)及翅片散熱器.工作時,發熱元件產生的熱量通過熱傳導傳遞給翅片,翅片通過熱對流將熱量傳遞給空氣.計算采用穩態傳熱模擬,因此可采用非結構網格進行網格劃分,圖1模型劃分出的網格數量較多,為了提高效率,在保證計算精度的情況下,只保留翅片散熱器及其與發熱元件的接觸面.翅片與流體交界處附近劃分了三層邊界層網格,進行加密處理,第一層邊界層網格高度為 0.15 mm,對應的無量綱壁面距離 y+=7.57.網格數約為357萬,邊界條件見圖 2.
1.2 數值方法驗證
保持其他條件參數不變,改變網格尺寸,得到三套不同粗細的網格.表1顯示了芯片最高溫度隨網格數目的變化,可以看到在不同網格數目下芯片最高溫度變化不大.為保證計算精度,選擇細網格進行數值計算.仿真結果如圖3(b)所示,最高溫度為 104.55℃,仿真與實驗最高溫度誤差僅為 0.03%(實驗結果將在 3.4節給出),驗證了計算模型的準確性.
02 翅片散熱
2.1 原始翅片模型
模型簡化前后仿真結果如圖 3所示,將發熱元件簡化為面熱源后對模型溫度影響很小,最高溫度僅相差 1.09%,說明本模型采用面熱源進行計算是合理的.從圖3(b)中可以看出:發熱元件中智能功率模塊具有最高溫度(104.55℃),整流橋模塊具有最低溫度(76.64℃);四個發熱模塊的溫度高于其他部位,并沿翅片高度方向溫度逐漸降低;離發熱元件越近溫度越高,遠離發熱元件的溫度越來越低;由于翅片散熱器較高側具有三個發熱元件,因此溫度要高于翅片散熱器較低側.
2.2 翅片結構參數對散熱器散熱性能的影響
由 2.1節知芯片最高溫度為 104.55℃,超過了芯片穩定持續工作的最高溫度 85℃.為了降低發熱元件溫度,提高散熱器散熱性能,在原始模型的基礎上對翅片結構參數進行分析.選取翅片高度和厚度兩個變量,考慮到安裝空間的大小,分別增加 5,10,15 mm的高度;翅片厚度分別為 0.7,0.8,0.9 mm,具體參數見表2(表中:δ為翅片厚度;ΔH 為Y方向翅片高度,翅片高度取值按照圖 3中 9根肋片從左到右排序(1~9)).最高溫度(tmax)隨增加的翅片高度和厚度的變化如圖 4和圖 5所示.
從圖4可以看出:翅片高度增加,溫度逐漸降低,且降低幅度逐漸變小,這是因為高度增加,對流區域增大,翅片散熱性能增強,隨著高度繼續增加,內部熱阻增大,翅片間的空氣流速減小,對流換熱系數減小,散熱增強的趨勢減小.從圖5可以看出:翅片厚度對翅片散熱器的影響不大,翅片厚度增加,溫度逐漸降低,但降低幅度不大.這是因為翅片厚度的增加導致熱傳導增強,增強了散熱效果,但同時翅片厚度增加會影響翅片間的對流換熱效果,二者相互制約,使得溫度降低幅度較小.結合圖4和圖5可知實例4(翅片高度增加 15 mm、翅片厚度1 mm)散熱器散熱效果最好,此時翅片散熱器最高結溫為 93.17℃,與實例1相比降低了 11.38℃,散熱效率提高10.88%,降低了發熱模塊的最高溫度,散熱性能得到提高,但依然高于芯片穩定持續工作的最高溫度 85℃,須要尋求其他散熱方式以達到降溫效果目標.03 合成雙射流與翅片組合散熱
3.1 組合散熱模型與求解設置
本節在2.1節的基礎上,增加合成雙射流激勵器,將合成雙射流與翅片組合(實例1(加合成雙射流)、實例4(加合成雙射流))對發熱元件進行散熱,激勵器與翅片之間的距離保持3 cm不變,射流出口1與翅片頂端對齊.為節約空間,激勵器其余部分采用朝上布置方式.考慮到翅片寬為 66 mm,即須要進行散熱的區域相對較大,且智能功率模塊所在流道有三個發熱元件,溫度高,故激勵器采用一長一短兩個射流出口,即對智能功率模塊所在流道采用強射流,對超快二極管所在流道采用弱射流.合成雙射流激勵器及具體布置方式如圖 6所示.合成雙射流激勵器尺寸為58 mm×56 mm×9 mm,射流出口1和射流出口2尺寸分別為40 mm×2 mm×7 mm和20 mm×2 mm×4 mm.網格模型只保留激勵器出口、翅片散熱器及其與發熱元件的接觸面,采用結構網格進行網格劃分.射流出口及翅片交界面進行加密處理,外流場計算區域為155 mm×100 mm×100 mm(長×寬×高).組合散熱邊界條件見圖 7.假設流場氣體不可壓,計算模型采用激勵器出口流動模型.計算為三維瞬態計算,選用SST k-ω湍流模型并選擇能量方程,合成雙射流出口定義為速度入口條件,采用用戶自定義的速度函數:
(1)
其余設置與1.1節相同.迭代計算、連續性方程、能量方程的殘差值均設為1×10-6.合成雙射流流場所用頻率為500 Hz,時間步長為 2.5×10-5 s,為保證數值模擬能達到動態穩定,至少模擬50個振動周期.
3.2 流場
圖8為實例1與合成雙射流組合散熱流場分布,可以看到合成雙射流在翅片間的流動狀態,圖中:x,y,z為流向、垂直流向和垂直于xy平面的方向.垂直流向情形下,翅片之間均可以看到旋渦,但翅片高、低側旋渦強度不同,這是采用不同射流強度的緣故.翅片限制了合成雙射流的發展,使得旋渦呈扁圓狀,如圖8(a)所示.圖8(b)為流向位置Y=0.066 m處,此時射流出口2處于吹程,射流出口1處于吸程,通過交替吸入和排出流體,兩出口分別形成兩股射流,在向下游遷移過程中二者相互作用,同時卷吸周圍流體,最終融合成一股新的合成射流.射流最大速度位于出口處,從射流出口到遠離出口,能量逐漸耗散,速度不斷減小.由于激勵器采用一長一短兩個出口,兩出口的速度大小并不對等,因此長出口的峰值速度要小于短出口的峰值速度.
3.3 溫度場
圖9為實例1與合成雙射流組合散熱溫度分布,最高溫度為82.91℃.圖9(a)中沿翅片高度方向,溫度逐漸降低,與 2.1節所述現象一致.由于三維熱傳導和熱對流作用,因此翅片之間觀察到熱邊界層現象,不利于散熱.合成雙射流的存在擾亂了熱邊界層.垂直流向下,旋渦涉及的區域熱邊界層被破壞,溫度迅速降低,散熱增強,射流湍流度越高,散熱效果越明顯;沿流向情形下,射流不斷向下游發展,射流到達的區域熱邊界層變薄,低溫區域逐漸擴散.這是因為合成雙射流具有一定的速度,當合成雙射流激勵器工作時,吹程流體向外發展,帶走了翅片表面大部分熱量,空氣摻混加強,熱邊界層被破壞,加快了熱對流,溫度降低更快且更加均勻;同時,吸程腔體吸入周圍空氣,流動增強.兩出口交替吸入、排出流體的過程中,沿途翅片的部分熱量被帶走,達到降溫的效果,如圖9(b)所示.圖10為翅片頂部溫度分布趨勢圖,結果表明:在實例1、實例4、實例1(加合成雙射流)、實例4(加合成雙射流)四種工況下,分別有對應的翅片高、低側溫度分布趨勢相同.在翅片較高側均觀察到三個溫度峰值,沿x方向分別位于整流橋、快恢復二極整流管、智能功率模塊;在翅片較低側觀察到一個溫度峰值,位于超快二極管.與實例1相比,實例4、實例1(加合成雙射流)、實例 4(加合成雙射流)散熱性能分別提高 10.88%,20.70%和 26.58%,均能達到更好的散熱效果,其中實例1(加合成雙射流)和實例4(加合成雙射流)最高溫度分別為 82.91℃和 76.76℃,均低于 85℃,散熱更為高效,滿足目標溫度要求.翅片較高側的溫降大于翅片較低側,這是因為射流出口長短不同,導致射流強度不同,翅片較高側射流強度大于翅片較低側,這與圖8中觀察到的現象一致.
3.4 仿真與實驗結果對比
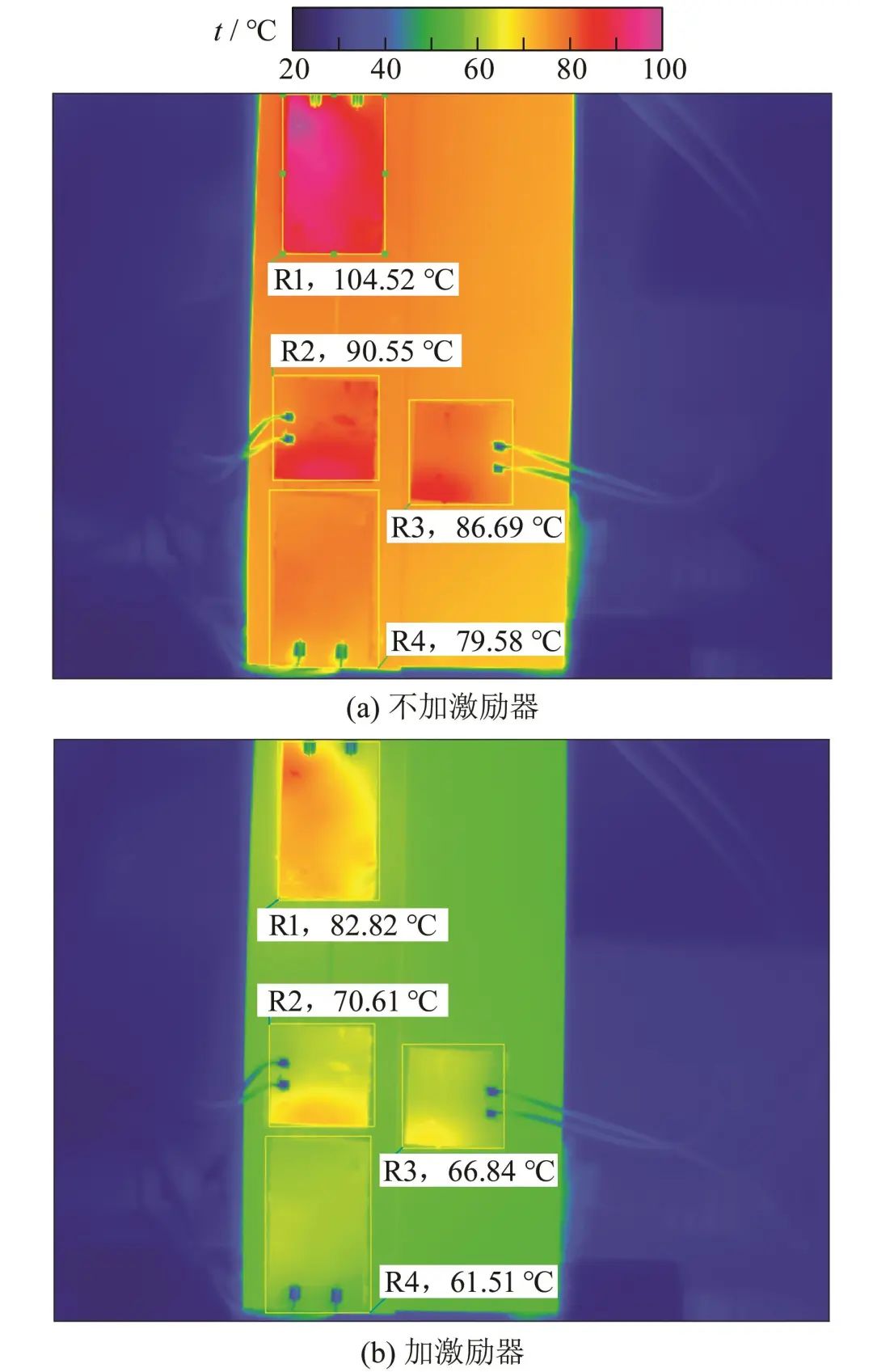
對實例1(加合成雙射流)進行紅外實驗驗證,實驗所用模型與仿真模型相同.實驗裝置主要由加熱裝置和紅外熱像儀實驗裝置組成.加熱裝置包括四個加熱片、三個直流電源、一個翅片散熱器.加熱片黏附在翅片上,接通直流電源,加熱片發熱并通過熱傳導將熱量傳給翅片,以此來模擬芯片發熱過程.實驗中直流電源提供給各加熱片的加熱功率分別為 21.64,9.58,9.58,5.36 W,環境溫度為 20℃.給加熱片加熱,當其溫度穩定時,啟動合成雙射流激勵器對其進行散熱.紅外熱像儀測量誤差為±0.01℃,表面發射率設定為0.6,用來顯示各加熱片的溫度信息,紅外熱像儀顯示溫度與熱電偶測量溫度一致.對比圖11(a)和(b)知加合成雙射流激勵器后溫度下降顯著,智能功率模塊溫降最大,達21.70℃.這是因為射流噴出后,出口附近會形成渦對,在向下游發展的過程中卷吸環境流體,此時射流湍流程度高,破壞熱邊界層的能力強,散熱效果更好;隨著射流進一步向下游發展,射流漸漸耗散,散熱能力減弱,因此溫降從大到小依次為智能功率模塊、快恢復二極整流管、整流橋.對智能功率模塊所在流道采用強射流,超快二極管所在流道采用弱射流,翅片較高側整體換熱能力強于較低側,但因翅片較低側只有一個發熱元件,散熱面積更大,加上射流耗散程度的影響,使得超快二極管散熱能力介于快恢復二極整流管與整流橋之間.表3為實例1和實例1(加合成雙射流)兩種工況下各模塊仿真與實驗的平均溫度對比,結果表明兩種情況下仿真與實驗均存在誤差.實例1仿真與實驗最大溫差為4.74℃,誤差為5.36%,位于快恢復二極整流管;最小溫差為1.49℃,誤差為1.95%,位于整流橋.實例1(加合成雙射流)最大溫差為 9.85℃,誤差為 18.88%,位于整流橋;最小溫差為0.26℃,誤差為 0.42%,位于超快二極管.可以發現:除了組合散熱時整流橋誤差較大外,其余模塊平均溫度均在誤差范圍內.這主要是因為實驗受外界環境等因素影響,當射流發展到較遠區域時,與實際射流相比,仿真時該射流強度更大,影響范圍更大,散熱效果更好.對比發現仿真工況下加激勵器前后的平均溫降大于實驗工況下加激勵器前后的平均溫降,說明合成雙射流實際散熱效果低于仿真時的散熱效果,但實驗時平均溫降最大達19.72℃,最小達15.92℃,充分驗證了合成雙射流散熱的高效性,說明利用合成雙射流激勵器進行散熱是可行的.
04 結論
本研究采用數值模擬與實驗相結合的方法,對翅片散熱、合成雙射流激勵器與翅片組合散熱進行了分析.仿真結果表明:隨著翅片高度、厚度增加,發熱元件溫度逐漸降低;實例4、實例1(加合成雙射流)、實例4(加合成雙射流)最高溫度分別為 93.17,82.91和76.76℃,與實例1相比,溫度分別降低了 11.38,21.64和 27.79℃,散熱效率分別提高10.88%,20.70%和26.58%,極大地增強了散熱效果.實驗結果表明:實例1(加合成雙射流)最高溫度為 82.82℃,與仿真最高溫度接近,各模塊溫降從大到小依次為智能功率模塊、快恢復二極整流管、超快二極管、整流橋,這與射流強弱和散熱面積大小有關;實驗時實例1及實例1(加合成雙射流)平均溫降最大達19.72℃,最小達15.92℃,充分說明了合成雙射流散熱的高效性和可行性.
標簽:
導熱散熱 點擊:
版權聲明:除非特別標注,否則均為本站原創文章,轉載時請以鏈接形式注明文章出處。